Trilocale in vendita

Trieste, Via Valmaura - Valmaura
€ 119.000
3 locali 3 locali
65 Mq 65 Mq
1 bagno 1 bagno

Trilocale in vendita

Trieste, Via Valmaura - Valmaura

Descrizione annuncio

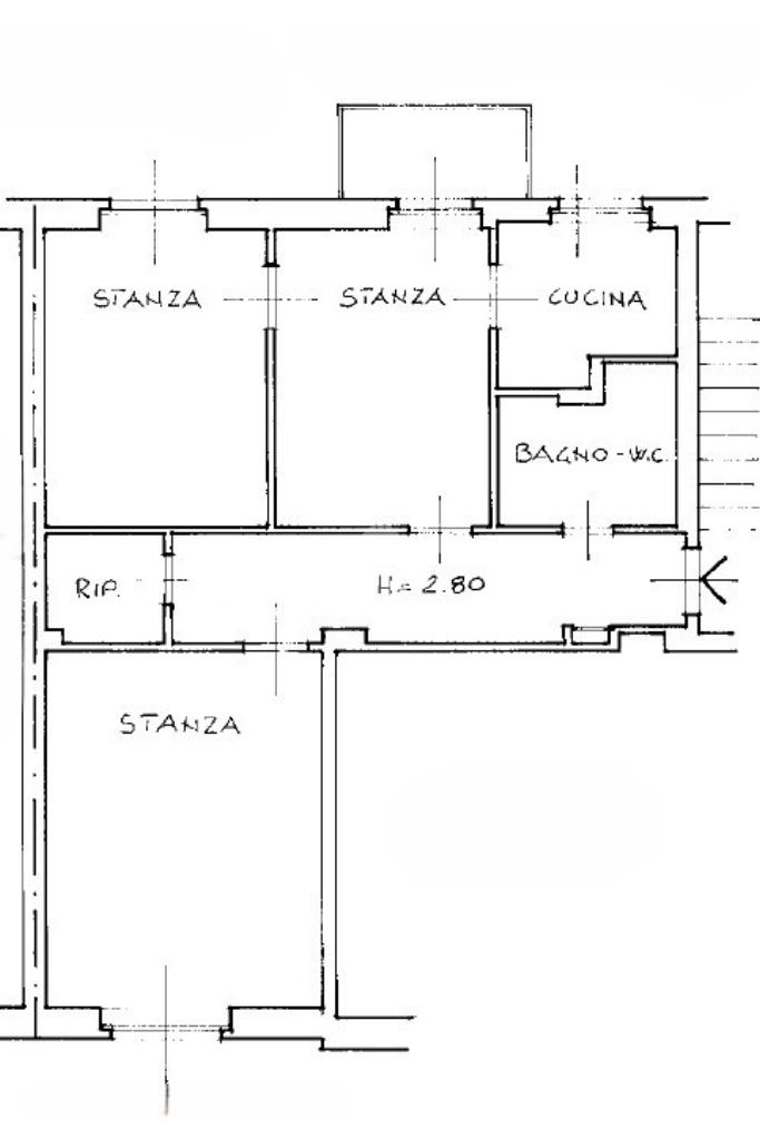
VALMAURA - In zona servitissima e pianeggiante, proponiamo in vendita un appartamento trilocale in stabile dotato di ascensore e facciate rifatte nel 2023.

Internamente l'immobile è da ristrutturare ed è composto da corridoio d'ingresso, soggiorno con cucinino e con accesso ad un poggiolo, camera matrimoniale, camera singola, comodo ripostiglio e bagno cieco completo con la doccia.

Riscaldamento centralizzato con valvole termostatiche e contacalorie e cantina di proprietà al piano seminterrato dello stabile.

Zona con facilità di parcheggio.

Mostra tutto

Nelle vicinanze

Trasporto pubblico Trasporto pubblico
Trieste Aquilinia
Trieste Aquilinia
1,7 Km
Valle delle Noghere
Valle delle Noghere
3,0 Km
Trasporto pubblico
60 m
v. Flavia 1 (stadi)
v. Flavia 1 (stadi)
350 m
Zona Industriale
2,0 Km
Ricariche auto elettriche Ricariche auto elettriche
Eneldrive Carpineto
290 m
EnelX Conad Trieste
2,8 Km
Scuole Scuole
Dipartimento Universitario Clinico di Scienze Mediche Chirurgiche e della Salute
350 m
Scuola Primaria e dell'Infanzia Statale Biagio Marin
380 m
Ricreatorio Comunale Nicolò Cobolli
480 m
Scuola Secondaria di Primo Grado Giuseppe Caprin
510 m
Scuola dell'Infanzia Comunale Kamilo Kromo
520 m
Farmacia Farmacia
Farmacia Serdoz
430 m
Al San Lorenzo
710 m
Farmacia Flavia
730 m
Baiamonti
780 m
Costalunga
1,3 Km
Ospedali Ospedali
IRCCS Materno Infantile Burlo Garofolo
1,5 Km
Sanatorio Triestino
2,5 Km
Ospedale Maggiore
3,0 Km
Supermercati Supermercati
Famila
160 m
Despar
170 m
Lidl
430 m
D Più Discount
490 m
Supermercati
1,1 Km
Negozi Negozi
Negozi
550 m
CRAI supermercati la beccheria
840 m
Piazza Italia
1,5 Km
Verh
2,3 Km
Old Company
2,3 Km
Bar Bar
Osteria al Bivio
650 m
Panificio-Caffè Viezzoli
790 m
Gelateria Nicola
800 m
Bar Movida
1,7 Km
Dancing Paradiso
1,8 Km
Ristoranti Ristoranti
Le Agavi
160 m
Il Velocipede - l'Osteria dell'Orbo
400 m
Pizzeria Stadio
450 m
Trattoria Bella Trieste
560 m
Ristoranti
640 m
Mostra tutto

Caratteristiche

Rif.:
61190155
Piano:
1 di 6 con ascensore (Piano basso)
Balconi:
1
Camere da letto:
2
Arredamento:
Parziale
Condizionamento:
Assente
Mostra tutto
Prezzo Prezzo
€ 119.000
Rata mutuo Rata mutuo
€ 565 / mese
Proponi il tuo prezzoProponi il tuo prezzo

Classe Energetica

Questo immobile è esente da classe energetica
Anno di costruzione:
1953
Riscaldamento:
Centralizzato
Tipo impianto:
A radiatori
Tipo alimentazione:
Metano

Ti interessa visionare l'immobile?

Fissa un appuntamento  Fissa un appuntamento

Richiedi informazioni

Clicca su Leggi per aprire l'informativa
* Questi campi sono obbligatori

Calcola il tuo mutuo

Semplice e senza impegno
Anticipo

( % )
Mutuo

( % )

pochi semplici passi

inserisci i tuoi dati
Questionario completato
Grazie per aver richiesto un appuntamento senza impegno con un nostro Consulente del Credito e Assicurativo.

Hai inserito correttamente tutti i dati necessari e a breve riceverai una e-mail con un link da convalidare per inviare i tuoi dati.
Affiliato
Trieste Est D.I.
Via Flavia, 60 34148 Trieste (TS)

Il nostro staff


  • Matteo Carducci
    Collaboratore

  • Silvia Tedesco
    Coordinatrice

  • Enrico Cossutti
    Affiliato
Via Flavia, 60 34148 Trieste (TS)
Zona: Trieste Zona Est
Mostra su mappa
Orari: Orario: Dal lunedì al venerdì dalle 09.00 alle 13.00 e dalle 15.00 alle 18.30
Affiliato
Trieste Est D.I.
Via Flavia, 60 34148 Trieste (TS)

2026 Tecnocasa Franchising S.p.A. - P. IVA 08365160152 - Via Monte Bianco 60/A 20089 Rozzano (MI). Ogni agenzia ha un proprio titolare ed è autonoma. Privacy policy | Policy utilizzo | Cookie policy